Villa aan het Drents-Friese Wold
Rust en natuur tussen Friesland en Drenthe
Riante vrijstaande villa op de rustige Buitenplaats de Hildenberg. Gelegen op grote en zonnige kavel van ruim 712 m2 met uitzicht op de golfbaan en naast een van de grootste natuurparken van Nederland. De woning beschikt over 4 ruime slaapkamers met ensuite badkamer, mooie keuken en is rook- en huisdiervrij.
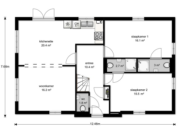
Indeling begane grond : Voorentree met hal, meterkast, trapopgang, toilet en toegang tot de woonkamer en 2 slaapkmaers. De woonkamer is zeer ruim (circa 37m2) en kent een mooie hoek-opgestelde keuken. De keuken is uitgerust met een houtlook werkblad, 4-pits gasfornuis, multifunctionele oven, afzuigkap, vaatwasser, dubbele wasbak en koelkast met vriesvak. De woning is volledig gemeubileerd, stoffering en verlichting zijn reeds aangebracht.
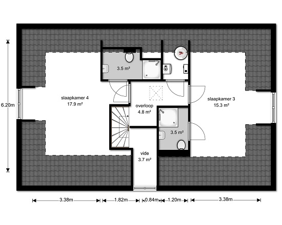
Indeling 1e verdieping : Via de trap komt u op de overloop van de eerste verdieping met 2 ruim bemeten slaapkamers. Beiden zijn wederom voorzien van eigen badkamer met douche, wastafel en toilet.
Tuin : Rondom de woning ligt een ruime, op het westen gelegen tuin, met verhoogd terras. Er is voldoende parkeergelegenheid door maar liefst twee eigen opritten en parkeercirkel voor de woning. Vanaf de woning fietst u binnen enkele minuten een van de mooiste natuurgebieden van Nederland binnen. Ook ligt het centrum van toeristisch Appelscha binnen fietsafstand.
Bij belangstelling voor of meer informatie over deze woning, neem contact met ons op via info@woneninheerhugowaard.nl.




